.jpg.aspx)
A new way to Nexton is coming to Midtown, and Saussy Burbank is bringing fresh floor plans ideal for modern living in the Lowcountry’s most popular new homes community.
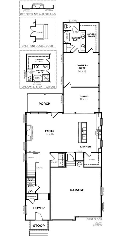
Like the brand-new Windward plan, Saussy Burbank’s first attached-garage product in the Nexton community. If you’ve always loved Saussy Burbank’s exceptional level of craftsmanship but found an attached garage better for your lifestyle, this is the plan you’ve been looking for.
A large, inviting entrance ushers you home to the Windward, flowing directly into the open-concept family area, which starts with a living space that can be upgraded to include a fireplace and built-ins.

The perfectly appointed kitchen boasts a generous, working island – with plenty of space for seating. The heart of the home, this kitchen is complemented by abundant natural light, upgradable appliances and tile, and a recessed refrigerator, keeping the space feeling open and streamlined.

Nearby, the dining space is open to the kitchen but framed by stately columns, giving it character and creating an intimate feel.

The downstairs owners’ suite is tucked into the rear of the home for a quiet, private sanctuary all your own. The owners’ bath fits a walk-in tiled shower and a soaker tub – the best of both worlds.

Upstairs, two spacious secondary bedrooms share a large hall bath. A truly large loft area can become a fourth bedroom or remain open to serve as a bonus space, TV and game room, or play room. Your choice!

Be among the first to call a Windward home by Saussy Burbank home. Send us a note at nexton@saussyburbank.com or give us a call at 843-900-6321 to schedule a tour of the new model.
###
Thank you for reading and sharing our articles from The Greater Charleston New Homes Guide. Our business is to know Charleston, SC's new home construction, home builders, neighborhoods, and homes so we may assist you as you take your new construction home journey. Please take the time to explore our site. The Greater Charleston New Homes Guide is considered the best and most reliable ‘local’ resource to new home construction, builders, neighborhoods, and homes throughout the Lowcountry since 2004.
10.20
Categories: Nexton - Saussy Burbank Nexton Lowcountry Neighborhood News